
Boiler adalah alat utama yang penting pada operasional sejumlah industri. Sebagai perbandingan Amerika Serikat mengkonsumsi 20% gas alam (natural gas) untuk berbagai aktivitas produksi dan khusus untuk industri makanan saja tercatat menggunakan lebih dari 10.000 boiler. Lebih dari 70% boiler tersebut menggunakan gas alam dengan konsumsi per tahunnya yakni 237 triliun Btu. Hal tersebut juga tidak banyak berbeda dengan kondisi di Indonesia. Dengan mengganti boiler berbahan bakar fossil khususnya gas alam menjadi biomasa memiliki banyak keuntungan yakni secara energi, ekonomi, dan lingkungan, yakni :
a. Terjadi pengurangan konsumsi bahan bakar fossil khususnya gas alam.
b. Penghematan biaya produksi dari pembelian gas alam.
c. Mengurangi emisi CO2 atau gas rumah kaca di atmosfer akibat pembakaran bahan bakar fossil.
Selain gas alam, sebagian besar boiler di Industri saat ini menggunakan bahan bakar fossil, yakni batubara, dan solar (minyak diesel). Penggunaan boiler sendiri sangat luas pada sejumlah industri antara lain tekstil, penyulingan minyak bumi, plastik dan kertas. Daya dorong berupa aspek lingkungan menjadi daya dorong yang kuat untuk migrasi fossil fuel boiler ke biomass boiler. Sejumlah perusahaan juga sangat concern terhadap aspek lingkungan ini dan ingin mendapatkan citra yang baik dengan menggunakan biomass boiler. Pada prakteknya memang sejumlah industri telah puluhan hingga ratusan tahun telah menggunakan biomass boiler karena memang industri tersebut menghasilkan banyak limbah biomasa yang bisa digunakan sebagai bahan bakarnya seperti pabrik kelapa sawit untuk produksi CPO, pabrik gula dari tebu dan sejumlah industri penyulingan minyak atsiri. Jadi memang pada kelompok agroindustri bahan bakar biomasa telah lazim digunakan untuk bahan bakar boiler.

Ada banyak biomasa yang bisa digunakan sebagai bahan bakar boiler, antara lain limbah-limbah pertanian, wood chip, wood pellet dan sebagainya. Cangkang sawit (palm kernel shell) adalah salah satu limbah biomasa yang banyak tersedia di Indonesia. Dengan luas kebun sawit mencapai 12 juta hektar diperkirakan ada 10 juta ton cangkang sawit setiap tahunnya. Sedangkan wood chip dan wood pellet bisa dibuat dari limbah-limbah kayu atau kayu dari kebun energi. Potensi produksi wood chip dan wood pellet dari kebun energi juga bisa sangat besar mengingat ada puluhan juta hektar lahan hutan tanaman industri (HTI) yang bisa untuk kebun energi tersebut. Ada lagi bahan bakar yang bisa dipertimbangkan untuk bahan bakar boiler yakni arang. Arang adalah bahan bakar padat yang tinggi kandungan karbon. Apabila sampah kota bisa dikonversi menjadi arang dengan teknologi pirolisis, maka ini menjadi sumber bahan bakar baru sekaligus mengatasi masalah lingkungan akibat sampah. Hal perlu diperhatikan bagi industri yang akan migrasi dari fossil fuel boiler ke biomass boiler adalah ketersediaan pasokan dan tentu saja Faktor keekonomiannya. Bahan bakar biomasa umumnya lebih mahal dibandingkan batubara.

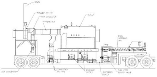
Secara teknis biomass boiler memerlukan perlakuan dan perawatan yang berbeda dengan fossil fuel boiler khususnya bahan bakar gas dan cair. Biomass boiler umumnya juga lebih besar sehingga membutuhkan tempat lebih luas. Bagi yang biasa menggunakan boiler berbahan bakar gas alam atau minyak diesel, tentu tidak pernah mengalami masalah dengan abu. Sedangkan pada penggunaan biomass boiler maka masalah abu adalah salah satu hal yang pasti dihadapi. Pada boiler industri umumnya telah ada perangkat otomatis untuk pembersihan abu tersebut sehingga tidak merepotkan pengguna. Abu dari pembakaran biomasa tersebut bisa digunakan untuk pupuk perkebunan sehingga juga bermanfaat. Selain itu untuk penyimpanannya, bahan bakar biomasa juga membutuhkan ruang lebih luas dibandingkan menyimpan minyak diesel atau gas alam. Untuk menyimpan wood chip dibutuhkan sekitar dua kali lebih luas daripada cangkang sawit, dan tiga kali untuk wood pellet pada kontent energi yang sama. Pada boiler industri umumnya menggunakan grate furnace dan fluidized bed furnace untuk membakar bahan bakar biomasa tersebut, gasifikasi juga digunakan tetapi jumlahnya tidak banyak sedangkan apabila menggunakan gas alam atau minyak diesel dengan pembakar nozzle bertekanan.


